マイタウン > (戸建(売買))地域から探す > 富士見市 > 富士見市羽沢1丁目 中古一戸建住宅 (ふじみ野店)
広々5DKの中古一戸建住宅です!南向きの為、陽当たり良好!幅広い世代に人気の和室、自由に使えるユーティリティースペース付♪お買い物に大変便利な「ららぽーと富士見」まで徒歩12分の好立地。
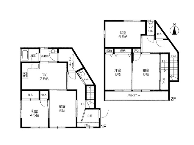
※写真や図と実際の現状とが異なる場合は現状を優先させていただきます。











(※元利均等方式 金利5.00%まで ※返済年数5~50年まで入力できます)
(※ボーナスは年2回で計算しています。1000万円まで入力できます)
(※物件購入時、その他諸費用が発生する場合がございます)
| 所在地 | 埼玉県富士見市羽沢1丁目 | ||
|---|---|---|---|
| 交通 | |||
| 間取り/詳細 |
5DK/ DK 7.5帖 1室/和室 6.0帖 1室/和室 4.5帖 1室/洋室 6.5帖 1室/洋室 6.0帖 1室/和室 6.0帖 1室 |
建物面積(坪数) | 97.97㎡(29.63坪) |
| 価格 | 1,770万円 | ||
| 駐車場/月額料金 | 有(1台)/0円 車種による | ||
| 土地の敷金/保証金 | -/- | 借地料/借地期間 | -/- |
| 土地権利 | 所有権 | 土地面積(坪数) | 92.95㎡(28.11坪) |
| 傾斜地部分面積 | - | 路地状敷地 | - |
| 私道負担面積/セットバック | -/- | 高圧線下面積 | - |
| 地目/地勢 | 宅地/- | 接道状況 | 一方(南東 公道 4.0m) |
| 建ぺい率/容積率 | 60%/100% | 用途地域 | 第一種低層住居専用 |
| 都市計画 | 市街化区域 | 種別/構造 | 中古一戸建/木造 |
| 階建 | 2階建 | 築年月(築年数) | 1997年 5月 (築28年) |
| 総区画数/販売区画数 | 1区画/1区画 | 向き | 南 |
| 現況 | 空家 | その他の法令上の制限 | - |
| 取引態様/引渡時期 | 仲介/即時 | 建築確認番号 | - |
| 物件番号 | 95089549 | 取引条件の有効期限 | 2026年03月23日 |
| 設備条件 |
|
||
| 備考 | ※図面と現況が異なる場合は現況優先とさせていただきます。 | ||
| 取扱会社 |
|
||
| QRコード |
このQRコードを読み取ることで、スマホでも物件情報を確認できます。 |
||
※地図上に表示される物件の位置は付近住所に所在することを表すものであり、実際の物件所在地とは異なる場合がございます。
富士見市羽沢1丁目 中古一戸建住宅 (ふじみ野店)に関するこだわり条件から探す