マイタウン > (戸建(売買))地域から探す > 新座市 > 新座市新座2丁目 新築一戸建住宅 全1棟 (志木本店)
■設計住宅性能評価書取得物件
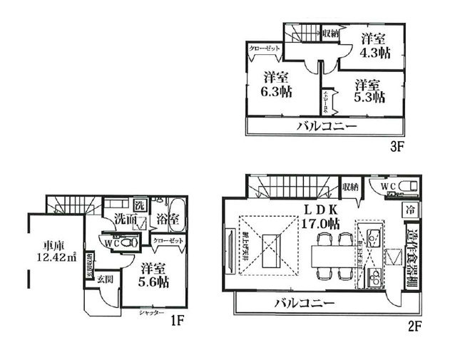
■大切な車を守るビルトインガレージ
■南東向きで陽当たり良好な2階リビング
■ファミリーに嬉しい4LDKのゆとりある住空間
■玄関スマートキー採用
■充実の設備仕様
※写真や図と実際の現状とが異なる場合は現状を優先させていただきます。











(※元利均等方式 金利5.00%まで ※返済年数5~50年まで入力できます)
(※ボーナスは年2回で計算しています。1000万円まで入力できます)
(※物件購入時、その他諸費用が発生する場合がございます)
| 所在地 | 埼玉県新座市新座2丁目 | ||
|---|---|---|---|
| 交通 | |||
| 間取り/詳細 |
4LDK/ 洋室 5.6帖 1室/LDK 17.0帖 1室/洋室 6.3帖 1室/洋室 5.3帖 1室/洋室 4.3帖 1室 |
建物面積(坪数) | 107.63㎡(32.55坪) |
| 価格 | 4,480万円 | ||
| 駐車場/月額料金 | 有(1台)/0円 ビルトインガレージ | ||
| 土地の敷金/保証金 | -/- | 借地料/借地期間 | -/- |
| 土地権利 | 所有権 | 土地面積(坪数) | 63.78㎡(19.29坪) |
| 傾斜地部分面積 | - | 路地状敷地 | - |
| 私道負担面積/セットバック |
214.00㎡/無 私道負担割合 : 180/2140 |
高圧線下面積 | - |
| 地目/地勢 | 宅地/平坦 | 接道状況 | 一方(南東 私道 4.0m) |
| 建ぺい率/容積率 | 60%/200% | 用途地域 | 第一種中高層住居専用 |
| 都市計画 | 市街化区域 | 種別/構造 | 新築一戸建/木造 |
| 階建 | 3階建 | 築年月(築年数) | 2026年 6月 (予定) |
| 総区画数/販売区画数 | 1区画/1区画 | 向き | 南東 |
| 現況 | 未完成 | その他の法令上の制限 | 県景観条例 |
| 取引態様/引渡時期 | 仲介/相談 | 建築確認番号 | 第SJK-KX255414600号 |
| 物件番号 | 100811512 | 取引条件の有効期限 | 2026年05月30日 |
| 設備条件 |
|
||
| 取扱会社 |
|
||
| QRコード |
このQRコードを読み取ることで、スマホでも物件情報を確認できます。 |
||
※地図上に表示される物件の位置は付近住所に所在することを表すものであり、実際の物件所在地とは異なる場合がございます。
新座市新座2丁目 新築一戸建住宅 全1棟 (志木本店)に関するこだわり条件から探す