マイタウン > (戸建(売買))地域から探す > 西東京市 > 西東京市東町5丁目 中古一戸建住宅 (保谷店)
交通利便性の良い立地に佇む3LDKのリフォーム物件!
■オープンハウス開催中!
■複数路線利用でき各方面へ好アクセス
■リフォーム完了し室内綺麗!
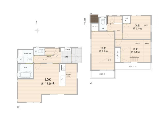
■全居室2面採光の為、陽当り良好
■衣類や趣味用品もスッキリと片付くロフト
■お洗濯物が乾きやすい南向きバルコニー
■教育施設や公園が近く良好な子育て環境
マイタウン保谷店までお気軽にお問い合わせください。
オープンハウス 毎週土日祝
※写真や図と実際の現状とが異なる場合は現状を優先させていただきます。











(※元利均等方式 金利5.00%まで ※返済年数5~50年まで入力できます)
(※ボーナスは年2回で計算しています。1000万円まで入力できます)
(※物件購入時、その他諸費用が発生する場合がございます)
| 所在地 | 東京都西東京市東町5丁目6-11 | ||
|---|---|---|---|
| 交通 | |||
| 間取り/詳細 |
3LDK/ LDK 15.0帖 1室/洋室 7.5帖 1室/洋室 6.3帖 1室/洋室 5.1帖 1室 ロフト |
建物面積(坪数) | 79.08㎡(23.92坪) |
| 価格 | 4,980万円 | ||
| 駐車場/月額料金 | 有(1台)/0円 | ||
| 土地の敷金/保証金 | -/- | 借地料/借地期間 | -/- |
| 土地権利 | 所有権 | 土地面積(坪数) | 80.94㎡(24.48坪) |
| 傾斜地部分面積 | - | 路地状敷地 | - |
| 私道負担面積/セットバック | 19.30㎡/- | 高圧線下面積 | - |
| 地目/地勢 | 宅地/- | 接道状況 | 一方(東 私道 4.0m) |
| 建ぺい率/容積率 | 50%/100% | 用途地域 | - |
| 都市計画 | 市街化区域 | 種別/構造 | 中古一戸建/木造 |
| 階建 | 2階建 | 築年月(築年数) | 2016年 12月 (築9年) |
| 総区画数/販売区画数 | 1区画/1区画 | 向き | 南 |
| 現況 | 空家 | その他の法令上の制限 | 高度地区/準防火地域 |
| 取引態様/引渡時期 | 専任媒介/即時 | 建築確認番号 | - |
| 物件番号 | 93980299 | 取引条件の有効期限 | 2026年03月23日 |
| リフォーム |
2025年9月 キッチン 浴室 トイレ 壁 床 ハウスクリーニング |
||
| 設備条件 |
|
||
| 備考 |
※私道負担面積:184㎡×持分184000分の19355有 ※図面と現況が異なる場合は現況優先とさせていただきます。 ※本物件上空の一部(72.45㎡)、私道持分上空の一部(5.41㎡)は送電線路下にございます。 ~周辺環境~ ■グローバルキッズ東伏見園・・・徒歩5分(約350m) ■西東京市立なかまち保育園・・・徒歩6分(約450m) ■コビープリスクールみなみおおいずみ・・・徒歩8分(約600m) ■みどりが丘保谷幼稚園・・・徒歩8分(約600m) ■大泉富士幼稚園・・・徒歩9分(約650m) ■西東京市立東小学校・・・徒歩10分(約750m) ■西東京市立明保中学校・・・徒歩11分(約850m) ■ヨークフーズ保谷店・・・徒歩10分(約750m) ■西友保谷店・・・徒歩15分(約1200m) ■ファミリーマート西東京東町店・・・徒歩7分(約550m) ■セブンイレブン西東京市東町1丁目店・・・徒歩10分(約800m) ■天神山公園・・・徒歩1分(約65m) ■中西台公園・・・徒歩2分(約100m) ■文理台公園・・・徒歩12分(約900m) ■西東京市保谷駅前図書館・・・徒歩15分(約1200m) ■つくしこどもクリニック・・・徒歩5分(約350m) ■はやし内科クリニック・・・徒歩5分(約350m) ■西東京市立中町児童館・・・徒歩5分(約350m) |
||
| 取扱会社 |
|
||
| QRコード |
このQRコードを読み取ることで、スマホでも物件情報を確認できます。 |
||
※地図上に表示される物件の位置は付近住所に所在することを表すものであり、実際の物件所在地とは異なる場合がございます。
西東京市東町5丁目 中古一戸建住宅 (保谷店)に関するこだわり条件から探す