マイタウン > (戸建(売買))地域から探す > 東久留米市 > 東久留米市下里5丁目 中古一戸建住宅 (保谷店)
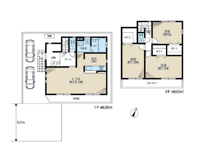
平成29年11月築!カースペース2台付3LDKの住まい!
全居室6帖以上&収納豊富なゆとりある設計!
■全52区画の大型分譲地内
■南向きの為、陽当たり良好
■2026年1月内装リフォーム完了
■LDK18.5帖+対面式キッチン
■家事便利な水回り集中設計
■SIC、3つのWIC付き
■スーパー・コンビニ徒歩10分以内
※写真や図と実際の現状とが異なる場合は現状を優先させていただきます。











(※元利均等方式 金利5.00%まで ※返済年数5~50年まで入力できます)
(※ボーナスは年2回で計算しています。1000万円まで入力できます)
(※物件購入時、その他諸費用が発生する場合がございます)
| 所在地 | 東京都東久留米市下里5丁目 | ||
|---|---|---|---|
| 交通 | |||
| 間取り/詳細 |
3LDK/ LDK 18.5帖 1室/洋室 7.5帖 1室/洋室 7.0帖 1室/洋室 6.0帖 1室 SIC、WIC3つ付 |
建物面積(坪数) | 96.04㎡(29.05坪) |
| 価格 | 3,748万円 | ||
| 駐車場/月額料金 | 有(2台)/0円 車種によります | ||
| 土地の敷金/保証金 | -/- | 借地料/借地期間 | -/- |
| 土地権利 | 所有権 | 土地面積(坪数) | 120.12㎡(36.33坪) |
| 傾斜地部分面積 | - | 路地状敷地 | - |
| 私道負担面積/セットバック | -/- | 高圧線下面積 | - |
| 地目/地勢 | 宅地/- | 接道状況 | 一方(南 公道 5.0m 間口 4.9m) |
| 建ぺい率/容積率 | 40%/80% | 用途地域 | 第一種低層住居専用 |
| 都市計画 | 市街化区域 | 種別/構造 | 中古一戸建/木造 |
| 階建 | 2階建 | 築年月(築年数) | 2017年 11月 (築8年) |
| 総区画数/販売区画数 | 1区画/1区画 | 向き | 南 |
| 現況 | 空家 | その他の法令上の制限 | - |
| 取引態様/引渡時期 | 仲介/相談 | 建築確認番号 | - |
| 物件番号 | 100827234 | 取引条件の有効期限 | 2026年03月02日 |
| リフォーム |
2026年1月 浴室 トイレ 壁 全室照明器具設置、ハウスクリーニング |
||
| 設備条件 |
|
||
| 備考 |
※2台駐車可(車種によります) ※工事内容は売主規格によります。 ※図面と現況が異なる場合は現況優先とさせていただきます。 【内装リフォーム内容】全室クロス貼替、トイレ新規交換(1階・2階)、トイレ床フロアタイル施工、浴室鏡、シャワーヘッド、ホース新規交換、全室照明器具設置、ハウスクリーニング |
||
| 設備(その他) | 電気:任意の小売事業者と契約可 | ||
| 取扱会社 |
|
||
| QRコード |
このQRコードを読み取ることで、スマホでも物件情報を確認できます。 |
||
※地図上に表示される物件の位置は付近住所に所在することを表すものであり、実際の物件所在地とは異なる場合がございます。
東久留米市下里5丁目 中古一戸建住宅 (保谷店)に関するこだわり条件から探す
東久留米市にある駅から探す