マイタウン > (戸建(売買))地域から探す > 練馬区 > 練馬区東大泉7丁目 未入居一戸建住宅 全5棟 (保谷店)
西部池袋線「大泉学園」駅より徒歩16分の利便性の良い立地!
3沿線利用可能で通勤通学に便利です。
■制震装置「SAFE365」搭載
■プライバシー重視の2階リビング
■家事便利な水回り集中設計
■広々シューズインクローク
■小・中学校徒歩10分圏内
■スーパー・コンビニ徒歩6分
【外観】2024年9月撮影/教育、子育ての施設が充実し、家族みんなが楽しめる公園が多く点在する 子育て環境に安心な街。
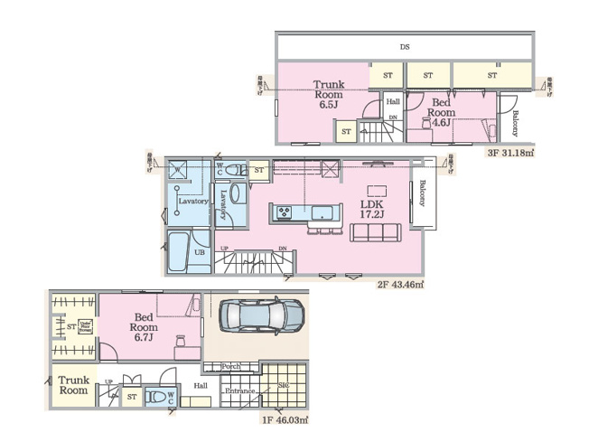
【間取り】随所に収納を備え、広々使える2SLDKの間取り。水回りが2階にまとまりお洗濯が2階ワンフロアで完結いたします。
※写真や図と実際の現状とが異なる場合は現状を優先させていただきます。











(※元利均等方式 金利5.00%まで ※返済年数5~50年まで入力できます)
(※ボーナスは年2回で計算しています。1000万円まで入力できます)
(※物件購入時、その他諸費用が発生する場合がございます)
| 所在地 | 東京都練馬区東大泉7丁目 | ||
|---|---|---|---|
| 交通 | |||
| 間取り/詳細 |
2LDK+1S(納戸)/ 洋室 6.7帖 1室/LDK 17.2帖 1室/S 6.5帖 1室/洋室 4.6帖 1室 SIC |
建物面積(坪数) | 120.67㎡(36.5坪) |
| 価格 | 6,780万円 | ||
| 駐車場/月額料金 | 有(1台)/0円 | ||
| 土地の敷金/保証金 | -/- | 借地料/借地期間 | -/- |
| 土地権利 | 所有権 | 土地面積(坪数) | 76.06㎡(23.00坪) |
| 傾斜地部分面積 | - | 路地状敷地 | - |
| 私道負担面積/セットバック | -/- | 高圧線下面積 | - |
| 地目/地勢 | 宅地/- | 接道状況 | 一方(東 公道 6.0m 間口 4.6m) |
| 建ぺい率/容積率 | 60%/200% | 用途地域 | 第一種中高層住居専用 |
| 都市計画 | 市街化区域 | 種別/構造 | 中古一戸建/木造 |
| 階建 | 3階建 | 築年月(築年数) | 2024年 7月 (築1年) |
| 総区画数/販売区画数 | 5区画/1区画 | 向き | 東 |
| 現況 | 完成済み | その他の法令上の制限 | 高度地区/準防火地域/景観条例 |
| 取引態様/引渡時期 | 仲介/相談 | 建築確認番号 | 第R05SHC119643号 |
| 物件番号 | 98720326 | 取引条件の有効期限 | 2026年03月16日 |
| 設備条件 |
|
||
| 備考 |
※敷地面積にゴミ置場スペース含む。 ※敷地内に電柱及び支線が入る場合があります。 ※図面と現況が異なる場合は現況優先とさせていただきます。 |
||
| 取扱会社 |
|
||
| QRコード |
このQRコードを読み取ることで、スマホでも物件情報を確認できます。 |
||
※地図上に表示される物件の位置は付近住所に所在することを表すものであり、実際の物件所在地とは異なる場合がございます。
練馬区東大泉7丁目 未入居一戸建住宅 全5棟 (保谷店)に関するこだわり条件から探す