マイタウン > (戸建(売買))地域から探す > 練馬区 > 練馬区東大泉7丁目 新築一戸建住宅 全1棟 (保谷店)
陽当たり良く開放感溢れる三方角地!
広々リビングとたっぷりの収納を備えた4LDKゆとりの住まい。
■徒歩にて2駅2路線利用可能
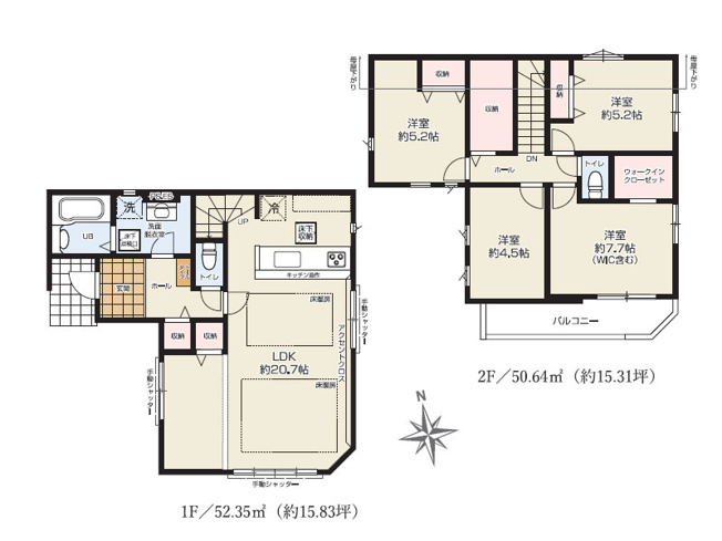
■LDK約20.7帖の大空間
■冬場も快適な床暖房付
■食洗機・浄水器・浴室乾燥機付
■衣類もスッキリ片付くホール収納
■教育施設が近く子育て環境良好
周辺環境も併せてご案内させていただきます。
マイタウン保谷店までお気軽にお問い合わせください。
【外観】2025年10月/陽当たり良く開放感溢れる三方角地! 広々リビングとたっぷりの収納を備えた4LDKゆとりの住まい。
【間取り】LDK20.7帖、ホール収納やWIC付きのゆとりの間取り。 リビング階段と対面式キッチンにてご家族との会話もとりやすくなっています。
※写真や図と実際の現状とが異なる場合は現状を優先させていただきます。











(※元利均等方式 金利5.00%まで ※返済年数5~50年まで入力できます)
(※ボーナスは年2回で計算しています。1000万円まで入力できます)
(※物件購入時、その他諸費用が発生する場合がございます)
| 所在地 | 東京都練馬区東大泉7丁目 | ||
|---|---|---|---|
| 交通 | |||
| 間取り/詳細 |
4LDK/ LDK 20.7帖 1室/洋室 7.7帖 1室/洋室 5.2帖 2室/洋室 4.5帖 1室 |
建物面積(坪数) | 102.99㎡(31.15坪) |
| 価格 | 6,999万円 | ||
| 駐車場/月額料金 | 有(1台)/0円 | ||
| 土地の敷金/保証金 | -/- | 借地料/借地期間 | -/- |
| 土地権利 | 所有権 | 土地面積(坪数) | 94.97㎡(28.72坪) |
| 傾斜地部分面積 | - | 路地状敷地 | - |
| 私道負担面積/セットバック | 6.83㎡/- | 高圧線下面積 | - |
| 地目/地勢 | 宅地/- | 接道状況 | 三方(南 公道 4.0m)(東 公道 5.0m)(西 公道 4.0m) |
| 建ぺい率/容積率 | 60%/200% | 用途地域 | 第一種住居 |
| 都市計画 | 市街化区域 | 種別/構造 | 新築一戸建/木造 |
| 階建 | 2階建 | 築年月(築年数) | 2025年 9月 (新築) |
| 総区画数/販売区画数 | 1区画/1区画 | 向き | 南 |
| 現況 | 完成済み | その他の法令上の制限 | 景観法/宅地造成及び特定盛土等規制法/高度地区/準防火地域/日影制限有/東京都景観条例、練馬区景観条例、景観計画区域 |
| 取引態様/引渡時期 | 仲介/即時 | 建築確認番号 | 第25UDI1W建00208号 |
| 物件番号 | 97343420 | 取引条件の有効期限 | 2026年03月16日 |
| 設備条件 |
|
||
| 備考 |
※網戸、カーテンレール、TVアンテナはオプションとなります。 ※電波障害等によるケーブルテレビ、共聴アンテナ申込みはお客様負担となります。 ※建物表示登記費用:102,000円(税込) ※税込とは消費税のことです。 ※図面と現況が異なる場合は現況優先とさせていただきます。 |
||
| 取扱会社 |
|
||
| QRコード |
このQRコードを読み取ることで、スマホでも物件情報を確認できます。 |
||
※地図上に表示される物件の位置は付近住所に所在することを表すものであり、実際の物件所在地とは異なる場合がございます。
練馬区東大泉7丁目 新築一戸建住宅 全1棟 (保谷店)に関するこだわり条件から探す