マイタウン > (戸建(売買))地域から探す > ふじみ野市 > ふじみ野市上福岡5丁目 新築一戸建住宅 全2棟 (ふじみ野店)
駅徒歩8分の好立地で周辺環境充実!
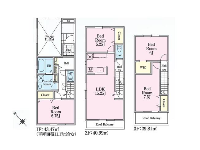
プライベート性が保たれた2階リビングの住まいが誕生!
■設計・建設住宅性能表示W取得
■耐震等級3(地震に強い家)
■人目が気になりにくく開放的な2階リビング
■物がスッキリ片付くウォークインクローゼット
■高効率給湯器・食器洗乾燥機付き
■愛車を風雨から守るビルトインガレージ
マイタウンふじみ野店までお気軽にお問い合わせください。
※写真や図と実際の現状とが異なる場合は現状を優先させていただきます。











(※元利均等方式 金利5.00%まで ※返済年数5~50年まで入力できます)
(※ボーナスは年2回で計算しています。1000万円まで入力できます)
(※物件購入時、その他諸費用が発生する場合がございます)
| 所在地 | 埼玉県ふじみ野市上福岡5丁目 | ||
|---|---|---|---|
| 交通 | |||
| 間取り/詳細 |
4LDK/ 洋室 6.7帖 1室/LDK 15.2帖 1室/洋室 5.2帖 1室/洋室 7.5帖 1室/洋室 6.0帖 1室 WIC |
建物面積(坪数) | 114.27㎡(34.56坪) |
| 価格 | 3,980万円 | ||
| 駐車場/月額料金 | 有(1台)/0円 | ||
| 土地の敷金/保証金 | -/- | 借地料/借地期間 | -/- |
| 土地権利 | 所有権 | 土地面積(坪数) | 80.21㎡(24.26坪) |
| 傾斜地部分面積 | - | 路地状敷地 | - |
| 私道負担面積/セットバック | 23.00㎡/- | 高圧線下面積 | - |
| 地目/地勢 | 宅地/- | 接道状況 | 一方(北東 私道 4.0m) |
| 建ぺい率/容積率 | 60%/200% | 用途地域 | 第一種住居 |
| 都市計画 | 市街化区域 | 種別/構造 | 新築一戸建/木造 |
| 階建 | 3階建 | 築年月(築年数) | 2025年 4月 (新築) |
| 総区画数/販売区画数 | 2区画/1区画 | 向き | 南西 |
| 現況 | 完成済み | その他の法令上の制限 | 法22条区域 |
| 取引態様/引渡時期 | 仲介/2025年4月下旬 | 建築確認番号 | 第SJK-KX245912200号 |
| 物件番号 | 94065119 | 取引条件の有効期限 | 2026年03月23日 |
| 設備条件 |
|
||
| 備考 |
※私道持分:23.00㎡有 ※建物面積にビルトイン車庫部分(11.17㎡)含む。 ※フラット35:適合証明取得費用88,000円(税込)が必要となります。 ※網戸・カーテン・照明・TVアンテナ等はオプションとなります。 ※ゴミ置き場に関しては近隣住民との話し合いになる為、当該物件の前に設置を求められる場合があります。 ※図面と現況が異なる場合は現況優先とさせていただきます。 |
||
| 取扱会社 |
|
||
| QRコード |
このQRコードを読み取ることで、スマホでも物件情報を確認できます。 |
||
※地図上に表示される物件の位置は付近住所に所在することを表すものであり、実際の物件所在地とは異なる場合がございます。
ふじみ野市上福岡5丁目 新築一戸建住宅 全2棟 (ふじみ野店)に関するこだわり条件から探す
ふじみ野市にある駅から探す