マイタウン > (戸建(売買))地域から探す > ふじみ野市 > ふじみ野市元福岡1丁目 新築一戸建住宅 全1棟 (ふじみ野店)
広々とした居住空間と豊富な収納が魅力のお住まいで始める新生活。
スーパー・コンビニが近くお買い物も便利な環境です!
■設計住宅性能評価取得・耐震等級3
■南東・北東道路に面した開放的な立地
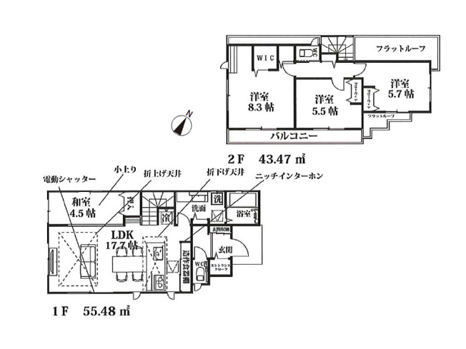
■LDK17.7帖+フルフラットキッチン
■リビング横小上がりの和室
■大型造作カップボード
■エントランスクローク
■ウォークインクローゼット
■食洗機・浄水器・浴室乾燥機付
■イオンタウンふじみ野徒歩8分
※写真や図と実際の現状とが異なる場合は現状を優先させていただきます。











(※元利均等方式 金利5.00%まで ※返済年数5~50年まで入力できます)
(※ボーナスは年2回で計算しています。1000万円まで入力できます)
(※物件購入時、その他諸費用が発生する場合がございます)
| 所在地 | 埼玉県ふじみ野市元福岡1丁目 | ||
|---|---|---|---|
| 交通 | |||
| 間取り/詳細 |
4LDK/ LDK 17.7帖 1室/和室 4.5帖 1室/洋室 8.3帖 1室/洋室 5.7帖 1室/洋室 5.5帖 1室 |
建物面積(坪数) | 98.95㎡(29.93坪) |
| 価格 | 3,580万円 | ||
| 駐車場/月額料金 | 有(1台)/0円 | ||
| 土地の敷金/保証金 | -/- | 借地料/借地期間 | -/- |
| 土地権利 | 所有権 | 土地面積(坪数) | 103.76㎡(31.38坪) |
| 傾斜地部分面積 | - | 路地状敷地 | - |
| 私道負担面積/セットバック | -/- | 高圧線下面積 | - |
| 地目/地勢 | 宅地/- | 接道状況 | 角地(南東 公道 5.0m)(北東 公道 4.0m) |
| 建ぺい率/容積率 | 60%/100% | 用途地域 | 第一種低層住居専用 |
| 都市計画 | 市街化区域 | 種別/構造 | 新築一戸建/木造 |
| 階建 | 2階建 | 築年月(築年数) | 2025年 4月 (新築) |
| 総区画数/販売区画数 | 1区画/1区画 | 向き | 南東 |
| 現況 | 完成済み | その他の法令上の制限 | 法22条区域・景観条例 |
| 取引態様/引渡時期 | 仲介/相談 | 建築確認番号 | 第SJK-KX245422200号 |
| 物件番号 | 93174256 | 取引条件の有効期限 | 2025年12月01日 |
| 設備条件 |
|
||
| 備考 | ※図面と現況が異なる場合は現況優先とさせていただきます。 | ||
| 取扱会社 |
|
||
| QRコード |
このQRコードを読み取ることで、スマホでも物件情報を確認できます。 |
||
※地図上に表示される物件の位置は付近住所に所在することを表すものであり、実際の物件所在地とは異なる場合がございます。
ふじみ野市元福岡1丁目 新築一戸建住宅 全1棟 (ふじみ野店)に関するこだわり条件から探す
ふじみ野市にある駅から探す