マイタウン > (戸建(売買))地域から探す > 新座市 > 新座市片山2丁目 新築一戸建住宅 全1棟 (保谷店)
閑静な住宅地に佇む3LDKの新築一戸建住宅!
耐震×制震で地震に強く長く安心して暮らすことができます。
■ZEH水準の省エネ住宅
■耐震等級3(最上等級)
■制震装置「SAFE365」搭載
■LDK15帖+対面式キッチン
■浄水器・浴室乾燥機・防犯カメラ付
■スーパー・コンビニ徒歩5分
周辺環境も併せてご案内させていただきます。
マイタウン保谷店までお気軽にお問い合わせください!
【外観】2026年1月撮影/耐震×制震で地震に強く長く安心して暮らせる住まい。建物完成し実際に室内をご覧いただけます。
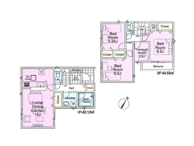
【間取り】南東向き3LDKの新築一戸建住宅です。納戸など収納が多くお部屋を広くお使いいただけます。※図面を基に作成しています。現況と異なる場合は現況を優先いたします。
※写真や図と実際の現状とが異なる場合は現状を優先させていただきます。











(※元利均等方式 金利5.00%まで ※返済年数5~50年まで入力できます)
(※ボーナスは年2回で計算しています。1000万円まで入力できます)
(※物件購入時、その他諸費用が発生する場合がございます)
| 所在地 | 埼玉県新座市片山2丁目 | ||
|---|---|---|---|
| 交通 | |||
| 間取り/詳細 |
3LDK/ LDK 15.0帖 1室/洋室 6.5帖 2室/洋室 5.2帖 1室 |
建物面積(坪数) | 86.67㎡(26.21坪) |
| 価格 | 3,580万円 | ||
| 駐車場/月額料金 | 有(1台)/0円 | ||
| 土地の敷金/保証金 | -/- | 借地料/借地期間 | -/- |
| 土地権利 | 所有権 | 土地面積(坪数) | 86.92㎡(26.29坪) |
| 傾斜地部分面積 | - | 路地状敷地 | - |
| 私道負担面積/セットバック | 10.37㎡/- | 高圧線下面積 | - |
| 地目/地勢 | 宅地/平坦 | 接道状況 | 一方(北東 私道 5.0m 間口 9.1m) |
| 建ぺい率/容積率 | 60%/100% | 用途地域 | 第一種低層住居専用 |
| 都市計画 | 市街化区域 | 種別/構造 | 新築一戸建/木造 |
| 階建 | 2階建 | 築年月(築年数) | 2025年 12月 (新築) |
| 総区画数/販売区画数 | 1区画/1区画 | 向き | 南東 |
| 現況 | 完成済み | その他の法令上の制限 | 絶対高さ10m、法22条指定区域、片山・西堀地区地区計画、埋蔵文化財包蔵地内 |
| 取引態様/引渡時期 | 仲介/即時 | 建築確認番号 | 第25UDI1W建05388号 |
| 物件番号 | 100460227 | 取引条件の有効期限 | 2026年03月02日 |
| 設備条件 |
|
||
| 備考 |
※フラット35S Aタイプ利用可。詳しくは担当までお問い合わせください。 ※TVアンテナ・網戸・居室照明・カーテンレール等は付きません。 ※敷地内に電柱及び支線が入る場合があります。 ※図面と現況が異なる場合は現況優先とさせていただきます。 ※外構工事、水道加入金等は販売価格に含まれております。 |
||
| 取扱会社 |
|
||
| QRコード |
このQRコードを読み取ることで、スマホでも物件情報を確認できます。 |
||
※地図上に表示される物件の位置は付近住所に所在することを表すものであり、実際の物件所在地とは異なる場合がございます。
新座市片山2丁目 新築一戸建住宅 全1棟 (保谷店)に関するこだわり条件から探す