マイタウン > (戸建(売買))地域から探す > 志木市 > 志木市上宗岡4丁目 中古一戸建住宅 (志木本店)
■2007年10月築の中古一戸建住宅
■内外装リフォーム済のためすぐに引渡可能
■通りからの視線が気にならない旗竿地
■開放感のある2階リビング
■バルコニー3ヶ所で開放的な住空間











(※元利均等方式 金利5.00%まで ※返済年数5~50年まで入力できます)
(※ボーナスは年2回で計算しています。1000万円まで入力できます)
(※物件購入時、その他諸費用が発生する場合がございます)
| 所在地 | 埼玉県志木市上宗岡4丁目 | ||
|---|---|---|---|
| 交通 | |||
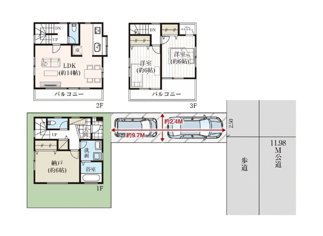
| 間取り/詳細 |
2LDK+1S(納戸)/ S 6.0帖 1室/LDK 14.0帖 1室/洋室 6.0帖 2室 |
建物面積(坪数) | 82.21㎡(24.86坪) |
| 価格 | 1,899万円 | ||
| 駐車場/月額料金 | 有(2台)/0円 2台目は車種による | ||
| 土地の敷金/保証金 | -/- | 借地料/借地期間 | -/- |
| 土地権利 | 所有権 | 土地面積(坪数) | 80.30㎡(24.29坪) |
| 傾斜地部分面積 | - | 路地状敷地 | - |
| 私道負担面積/セットバック | -/無 | 高圧線下面積 | - |
| 地目/地勢 | 宅地/平坦 | 接道状況 | 一方(北東 公道 11.9m) |
| 建ぺい率/容積率 | 60%/200% | 用途地域 | 第一種住居 |
| 都市計画 | 市街化区域 | 種別/構造 | 中古一戸建/木造 |
| 階建 | 3階建 | 築年月(築年数) | 2007年 10月 (築18年) |
| 総区画数/販売区画数 | 1区画/1区画 | 向き | 南東 |
| 現況 | 空家 | その他の法令上の制限 | - |
| 取引態様/引渡時期 | 仲介/相談 | 建築確認番号 | - |
| 物件番号 | 94906076 | 取引条件の有効期限 | 2025年12月01日 |
| リフォーム |
2025年4月 キッチン 浴室 トイレ 壁 床 2025年4月 外壁 屋根 |
||
| 設備条件 |
|
||
| 備考 |
【リフォーム内容(2025年4月完了)】 ■外壁・屋根塗装・コーキング打替え ■バルコニー防水塗装 ■キッチン・洗面化粧台・ユニットバスコーティング ■トイレ交換 ■給湯器交換 ■全室クロス張替 ■玄関シリンダー交換 ■室内クリーニング ■防蟻工事施工 ■水回りクッションフロア張替 ■高圧洗浄 |
||
| 取扱会社 |
|
||
| QRコード |
このQRコードを読み取ることで、スマホでも物件情報を確認できます。 |
||
※地図上に表示される物件の位置は付近住所に所在することを表すものであり、実際の物件所在地とは異なる場合がございます。
志木市上宗岡4丁目 中古一戸建住宅 (志木本店)に関するこだわり条件から探す
志木市にある駅から探す