マイタウン > (戸建(売買))地域から探す > 川越市 > 川越市砂新田5丁目 新築一戸建住宅 全1棟 (ふじみ野店)
南側約6.2m公道に面し陽当たり良好!
収納豊富な3SLDKの新築一戸建住宅です。
■ZEH水準の省エネ住宅
■地震に強い家(耐震等級3)
■2台駐車可(車種による)
■LDK17.7帖+対面式キッチン
■パントリー・SIC付き
■スーパー・コンビニ徒歩10分以内
【区画図】2台分のカースペースを備えており、お車での来客が多い方も安心です。(車種による)※図面を基に作成しています。現況と異なる場合は現況を優先いたします。
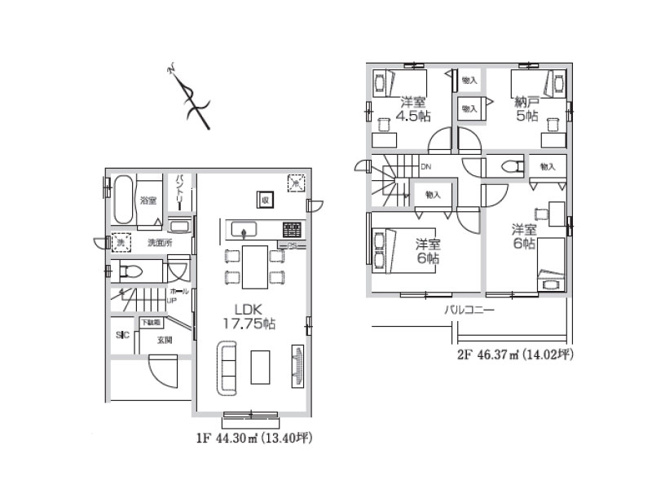
【間取り】SIC、パントリーなど収納豊富な3SLDK。水回りの行き来がしやすく家事効率も良好です。※図面を基に作成しています。現況と異なる場合は現況を優先いたします。
※写真や図と実際の現状とが異なる場合は現状を優先させていただきます。











(※元利均等方式 金利5.00%まで ※返済年数5~50年まで入力できます)
(※ボーナスは年2回で計算しています。1000万円まで入力できます)
(※物件購入時、その他諸費用が発生する場合がございます)
| 所在地 | 埼玉県川越市砂新田5丁目 | ||
|---|---|---|---|
| 交通 | |||
| 間取り/詳細 |
3LDK+1S(納戸)/ LDK 17.7帖 1室/洋室 6.0帖 2室/S 5.0帖 1室/洋室 4.5帖 1室 |
建物面積(坪数) | 90.67㎡(27.42坪) |
| 価格 | 3,690万円 | ||
| 駐車場/月額料金 | 有(2台)/0円 車種による | ||
| 土地の敷金/保証金 | -/- | 借地料/借地期間 | -/- |
| 土地権利 | 所有権 | 土地面積(坪数) | 101.50㎡(30.70坪) |
| 傾斜地部分面積 | - | 路地状敷地 | - |
| 私道負担面積/セットバック | -/- | 高圧線下面積 | - |
| 地目/地勢 | 宅地/平坦 | 接道状況 | 一方(南 公道 6.2m) |
| 建ぺい率/容積率 | 50%/100% | 用途地域 | 第一種低層住居専用 |
| 都市計画 | 市街化区域 | 種別/構造 | 新築一戸建/木造 |
| 階建 | 2階建 | 築年月(築年数) | 2026年 2月 (予定) |
| 総区画数/販売区画数 | 1区画/1区画 | 向き | 南 |
| 現況 | 未完成 | その他の法令上の制限 | - |
| 取引態様/引渡時期 | 仲介/相談 | 建築確認番号 | 第HPA-25-13138-1号 |
| 物件番号 | 99700304 | 取引条件の有効期限 | 2026年03月16日 |
| 設備条件 |
|
||
| 備考 |
※2台駐車可(車種による) ※網戸・一部シャッター・カーテンレール・ハンガーパイプ・居室照明器具等は付随しておりません。 ※帖数はPSを含みます。建物・配置は実際とは多少異なる場合があります。外構は実際とは異なります。又、植栽および車は価格に含まれておりません。 ※サッシ位置およびサイズは、実際とは異なる場合があります。 |
||
| 取扱会社 |
|
||
| QRコード |
このQRコードを読み取ることで、スマホでも物件情報を確認できます。 |
||
※地図上に表示される物件の位置は付近住所に所在することを表すものであり、実際の物件所在地とは異なる場合がございます。
川越市砂新田5丁目 新築一戸建住宅 全1棟 (ふじみ野店)に関するこだわり条件から探す