マイタウン > (戸建(売買))地域から探す > 川越市 > 川越市砂久保 新築一戸建住宅 全1棟 (ふじみ野店)
ご家族の仲が深まるリビングイン階段と対面式キッチン採用!
閑静な住宅地に佇む2SLDKの新築一戸建住宅です。
■ZEH水準の省エネ住宅
■耐震等級3(最上等級)
■2台駐車可(車種制限有)
■家事便利な水回り集中設計
■前面道路行き止まり
■小中学校徒歩15分以内
【区画図】2台駐車できセカンドカーをお持ちの方にもオススメです!(車種によります)※図面を基に作成しています。現況と異なる場合は現況を優先いたします。
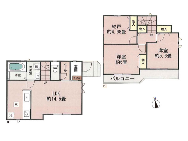
【間取り】水回り集中設計で家事効率良好!収納豊富な2SLDKの間取りです。※図面を基に作成しています。現況と異なる場合は現況を優先いたします。
※写真や図と実際の現状とが異なる場合は現状を優先させていただきます。











(※元利均等方式 金利5.00%まで ※返済年数5~50年まで入力できます)
(※ボーナスは年2回で計算しています。1000万円まで入力できます)
(※物件購入時、その他諸費用が発生する場合がございます)
| 所在地 | 埼玉県川越市大字砂久保 | ||
|---|---|---|---|
| 交通 | |||
| 間取り/詳細 |
2LDK+1S(納戸)/ LDK 14.5帖 1室/洋室 6.0帖 1室/洋室 5.6帖 1室/S 4.6帖 1室 |
建物面積(坪数) | 71.37㎡(21.58坪) |
| 価格 | 2,590万円 | ||
| 駐車場/月額料金 | 有(2台)/0円 2台目土間打ちは追加オプション、車種によります。 | ||
| 土地の敷金/保証金 | -/- | 借地料/借地期間 | -/- |
| 土地権利 | 所有権 | 土地面積(坪数) | 89.43㎡(27.05坪) |
| 傾斜地部分面積 | - | 路地状敷地 | - |
| 私道負担面積/セットバック | -/- | 高圧線下面積 | - |
| 地目/地勢 | 宅地/- | 接道状況 | 一方(東 公道 4.5m) |
| 建ぺい率/容積率 | 50%/80% | 用途地域 | 第一種低層住居専用 |
| 都市計画 | 市街化区域 | 種別/構造 | 新築一戸建/木造 |
| 階建 | 2階建 | 築年月(築年数) | 2026年 1月 (予定) |
| 総区画数/販売区画数 | 1区画/1区画 | 向き | 南 |
| 現況 | 未完成 | その他の法令上の制限 | 法22条区域 |
| 取引態様/引渡時期 | 仲介/相談 | 建築確認番号 | 第HPA-25-11995-1号 |
| 物件番号 | 100913130 | 取引条件の有効期限 | 2026年03月23日 |
| 設備条件 |
|
||
| 備考 |
※2台駐車可(2台目土間打ちは追加オプション、車種によります。) ※完成物件は契約後3週以内の決算が基本条件 ※網戸・カーテンレール・キッチン吊戸はオプションになります。 ※外構は売主指定となります。 ※フラット35利用の場合は適合証明検査申請料が必要となります。 ※表示登記費用95,000円(税込) ※図面と現況が異なる場合は現況優先とさせていただきます。 |
||
| 取扱会社 |
|
||
| QRコード |
このQRコードを読み取ることで、スマホでも物件情報を確認できます。 |
||
※地図上に表示される物件の位置は付近住所に所在することを表すものであり、実際の物件所在地とは異なる場合がございます。
川越市砂久保 新築一戸建住宅 全1棟 (ふじみ野店)に関するこだわり条件から探す