マイタウン > (戸建(売買))地域から探す > 川越市 > 川越市諏訪町 新築一戸建住宅 全1棟 (ふじみ野店)
南東側6m公道に面し陽当たり良く開放的!
2台分のカースペース付き4LDKの新築一戸建住宅です!
■設計住宅性能評価書取得
■折上天井採用のLDK18帖
■リビング横小上がりの和室
■食洗機・浄水器付システムキッチン
■収納便利な大型造作カップボード
■ウォークインクローゼット
■小学校まで徒歩4分
■スーパー・コンビニ徒歩6分以内
【外観】東武東上線「上福岡」駅徒歩17分!耐震等級『3』取得で地震に強い新築一戸建住宅です!
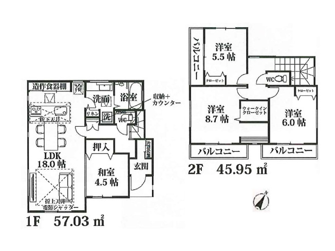
【間取り】折上天井採用のリビング、バルコニーに面した3居室は明るく開放的。WICなど収納も豊富なゆとりの住まいです。※図面を基に作成しています。現況と異なる場合は現況を優先いたします。
※写真や図と実際の現状とが異なる場合は現状を優先させていただきます。











(※元利均等方式 金利5.00%まで ※返済年数5~50年まで入力できます)
(※ボーナスは年2回で計算しています。1000万円まで入力できます)
(※物件購入時、その他諸費用が発生する場合がございます)
| 所在地 | 埼玉県川越市諏訪町 | ||
|---|---|---|---|
| 交通 | |||
| 間取り/詳細 |
4LDK/ LDK 18.0帖 1室/和室 4.5帖 1室/洋室 8.7帖 1室/洋室 6.0帖 1室/洋室 5.5帖 1室 WIC付 |
建物面積(坪数) | 102.98㎡(31.15坪) |
| 価格 | 4,280万円 | ||
| 駐車場/月額料金 | 有(2台)/0円 | ||
| 土地の敷金/保証金 | -/- | 借地料/借地期間 | -/- |
| 土地権利 | 所有権 | 土地面積(坪数) | 125.40㎡(37.93坪) |
| 傾斜地部分面積 | - | 路地状敷地 | - |
| 私道負担面積/セットバック | -/- | 高圧線下面積 | - |
| 地目/地勢 | 宅地/- | 接道状況 | 一方(南東 公道 6.0m) |
| 建ぺい率/容積率 | 60%/200% | 用途地域 | 第一種中高層住居専用 |
| 都市計画 | 市街化区域 | 種別/構造 | 新築一戸建/木造 |
| 階建 | 2階建 | 築年月(築年数) | 2025年 11月 (新築) |
| 総区画数/販売区画数 | 1区画/1区画 | 向き | 南東 |
| 現況 | 完成済み | その他の法令上の制限 | 法22条区域、居住誘導区域 |
| 取引態様/引渡時期 | 仲介/即時 | 建築確認番号 | 第SJK-KX255404890号 |
| 物件番号 | 100079699 | 取引条件の有効期限 | 2026年03月16日 |
| 設備条件 |
|
||
| 備考 | ※図面と現況が異なる場合は現況優先とさせていただきます。 | ||
| 取扱会社 |
|
||
| QRコード |
このQRコードを読み取ることで、スマホでも物件情報を確認できます。 |
||
※地図上に表示される物件の位置は付近住所に所在することを表すものであり、実際の物件所在地とは異なる場合がございます。
川越市諏訪町 新築一戸建住宅 全1棟 (ふじみ野店)に関するこだわり条件から探す