マイタウン > (マンション(売買))地域から探す > 西東京市 > グランジオ武蔵野 (保谷店)
ペット飼育可!採光・通風・眺望良好な高層階!
プライベートエントランス付リフォーム住戸で始める新生活!
■ペット飼育可(飼育細則有)
■2026年1月室内リフォーム完了
■LDK19.2帖の大空間
■ウォークインクローゼット
■食洗機・浄水器・浴室乾燥機付
■安心のオートロック・24時間管理体制
■スーパー・コンビニ徒歩10分圏内
【外観】2026年2月撮影/大切なペットと暮らせる3LDKのリフォーム住戸(飼育細則有)!
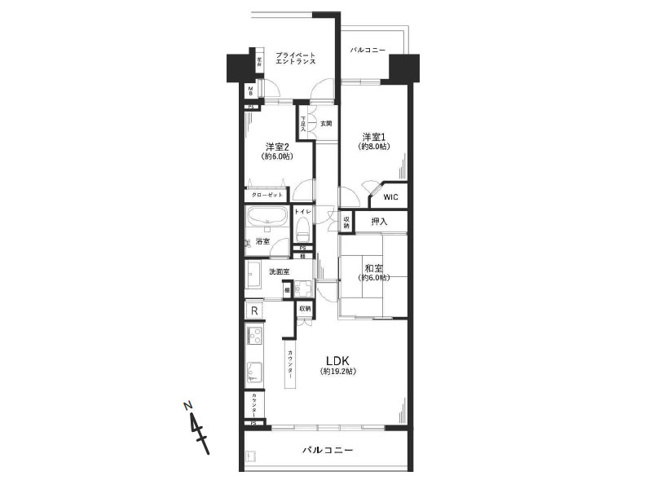
【間取り】全居室6帖以上!広々LDKにWICなど収納も豊富なゆとりの住まい。水回りが一直線に繋がり家事効率も良好です。※図面を基に作成しています。現況と異なる場合は現況を優先いたします。
※写真や図と実際の現状とが異なる場合は現状を優先させていただきます。











(※元利均等方式 金利5.00%まで ※返済年数5~50年まで入力できます)
(※ボーナスは年2回で計算しています。1000万円まで入力できます)
(※物件購入時、その他諸費用が発生する場合がございます)
| 所在地 | 東京都西東京市谷戸町2丁目 | ||
|---|---|---|---|
| 交通 | |||
| 間取り/詳細 |
3LDK LDK 19.2帖 1室/洋室 8.0帖 1室/洋室 6.0帖 1室/和室 6.0帖 1室 WIC付 |
||
| 専有面積/バルコニー面積 | 90.13㎡/19.89㎡ | ルーフバルコニー面積/テラス面積/専用庭面積 | -/-/- |
| 価格 | 6,690万円 | ||
| 管理費 | 16,100円 | ||
| 修繕積立金 | 25,240円 | 修繕積立基金 | - |
| 権利金 | - | 駐車場/月額料金 | 空無/5,500円 900円~5500円/月 |
| 土地の敷金/保証金 | -/- | 借地料/借地期間 | -/- |
| 土地権利 | 所有権 | 国土法届出要否 | 不要 |
| 用途地域 | 工業 | 地勢 | - |
| 種別/構造 | 中古マンション/鉄骨鉄筋コンクリート | 向き | 南西 |
| 築年月(築年数) | 2003年 5月 (築22年) | ||
| 所在階/階建 | 15階/20階建 | 棟総戸数/販売戸数 | 558戸/1戸 |
| 管理組合有無 | - | 管理形態 | 管理会社に全部委託 |
| 管理員の勤務形態 | 常駐 | 管理会社 | 株式会社長谷工コミュニティ |
| 取引態様 | 仲介 | 現況 | 空家 |
| 引渡し | 即時 | 建築確認番号 | - |
| 物件番号 | 101307640 | 取引条件の有効期限 | 2026年03月16日 |
| リフォーム |
2026年1月 キッチン 浴室 トイレ 壁 床 洗面室、和室、ハウスクリーニング等 |
||
| 設備条件 |
|
||
| 備考 |
※ペット飼育可(犬猫可。成長時の体高がおおむね40cm以内、1住戸合計2匹以内等細則有) ※駐車場:有(900~5500円/月) ※駐輪場:有(100円/月)※要ステッカー貼付 ※バイク置場:有(500円/月) ※駐車場、駐輪場、バイク置場の空き状況はお問い合わせください。 ※図面と現況が異なる場合は現況優先とさせていただきます。 |
||
| 取扱会社 |
|
||
| QRコード |
このQRコードを読み取ることで、スマホでも物件情報を確認できます。 |
||
※地図上に表示される物件の位置は付近住所に所在することを表すものであり、実際の物件所在地とは異なる場合がございます。
グランジオ武蔵野 (保谷店)に関するこだわり条件から探す