マイタウン > (マンション(売買))地域から探す > 志木市 > コスモ志木 (志木本店)
■12階角部屋、広々としたルーフバルコニーで開放感良好
■新規内装リフォーム済
■エレベーター停止階で移動ラクラク
■小中学校近く子育て便利
■商業施設が充実した住環境
■管理人住込で管理体制良好
※写真や図と実際の現状とが異なる場合は現状を優先させていただきます。











(※元利均等方式 金利5.00%まで ※返済年数5~50年まで入力できます)
(※ボーナスは年2回で計算しています。1000万円まで入力できます)
(※物件購入時、その他諸費用が発生する場合がございます)
| 所在地 | 埼玉県志木市幸町1丁目 | ||
|---|---|---|---|
| 交通 | |||
| 間取り/詳細 |
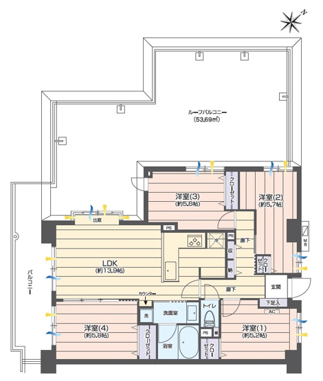
4LDK LDK 13.9帖 1室/洋室 5.8帖 1室/洋室 5.7帖 1室/洋室 5.6帖 1室/洋室 5.2帖 1室 |
||
| 専有面積/バルコニー面積 | 79.83㎡/13.21㎡ | ルーフバルコニー面積/テラス面積/専用庭面積 | 53.69㎡/-/- |
| 価格 | 4,480万円 | ||
| 管理費 | 11,670円 | ||
| 修繕積立金 | 12,100円 | 修繕積立基金 | - |
| 権利金 | - | 駐車場/月額料金 | 空有/11,000円 |
| 土地の敷金/保証金 | -/- | 借地料/借地期間 | -/- |
| 土地権利 | 所有権 | 国土法届出要否 | 不要 |
| 用途地域 | 第一種住居/第二種住居 | 地勢 | 平坦 |
| 種別/構造 | 中古マンション/鉄骨鉄筋コンクリート | 向き | 南西 |
| 築年月(築年数) | 1986年 7月 (築39年) | ||
| 所在階/階建 | 12階/13階建 | 棟総戸数/販売戸数 | 247戸/1戸 |
| 管理組合有無 | 有 | 管理形態 | 管理会社に全部委託 |
| 管理員の勤務形態 | 常駐 | 管理会社 | 大和ライフネクスト(株) |
| 取引態様 | 仲介 | 現況 | 空家 |
| 引渡し | 即時 | 建築確認番号 | - |
| 物件番号 | 98592541 | 取引条件の有効期限 | 2025年12月01日 |
| リフォーム |
2025年9月 キッチン 浴室 トイレ 壁 床 全室 |
||
| 設備条件 |
|
||
| 備考 |
※管理費は2026年1月分より15200円/月に改定となります。 【リフォーム内容】 ・システムキッチン(タカラスタンダード) ・浴室換気乾燥機付ユニットバス(TOTO) ・温水洗浄付暖房便座一体型トイレ(TOTO) ・三面鏡洗面化粧台(Panasonic) ・TVモニター付インターホン ・分電盤 ・フロアタイル(玄関、トイレ、洗面室) ・給排水管新規交換(専有部分内飛込より) ・全居室フローリング ・給湯器(追焚付) ・建具 ・全室クロス(天井、壁) ・ミラー付シューズボックス ・室内クリーニング等 |
||
| 条件(その他) | ルーフバルコニー使用料月:1,000円 | ||
| 取扱会社 |
|
||
| QRコード |
このQRコードを読み取ることで、スマホでも物件情報を確認できます。 |
||
※地図上に表示される物件の位置は付近住所に所在することを表すものであり、実際の物件所在地とは異なる場合がございます。
コスモ志木 (志木本店)に関するこだわり条件から探す
志木市にある駅から探す